Apartment for rent, Berlin Mitte, Berlin, Nazarethkirchstraße
Nazarethkirchstraße, Berlin Mitte- Apartment for rent
- 26 m2
- 1,150 EUR per month
- Apartment for rent
- 26 m2
- 1,150 EUR per month
⚡See all details about the rental and get direct access to the landlord's contact information.
Apartment for rent, Berlin Mitte, Berlin, Nazarethkirchstraße
Facts
Report error- 9294177
- Apartment
- 26 m2
- 1.3.2026
- 1,150 EUR
- 1,350 EUR
- Yes
⚡See all details about the rental and get direct access to the landlord's contact information.
Apartment for rent in Berlin Mitte, Berlin
Welcome to our beautiful newly renovated apartments, where you bring the spirit and we take care of the rest!
Our large number of co-living apartments all consist of spacious and bright rooms in a modern design. The best part is, everything is already fully furnished. In other words, you can literally grab your suitcase and move in tomorrow!
Additionally, not only all of the rooms are already equipped with the essentials like electricity, water and internet, but we also offer numerous other facilities that are included in the price. Whether you would like to do sports in our fitness rooms, study in the coworking areas or socialise during organised workshops and events; we have it all!
We are located in ‘Wedding’, which has become one of the trendiest areas in Berlin, throughout recent years. With countless bars, restaurants and shops right around the corner, this district has everything you may need within walking distance. Furthermore, due to its central location, all other exciting parts of Berlin can easily be reached by public transportation, with U6 and U9 lines arriving at the Leopoldplatz (2-mintue walk) on a regular basis.
With open-minded and international people this place will not only provide you with an amazing new home, but you will also be part of our international and open-minded community, that you do not want to miss out on.
Services / facilities that are INCLUDED in the price:
- heating, electricity, water
- high speed internet
- fitness room
- community area
- working spaces
- gaming area
- security (camera surveillance)
- outdoor areas that can be used as sports facilities
- bicycle parking spaces
- community manager
- great location
- *laundry room (including washing machine & dryer)
*Please note that although a common laundry room is included in the price, the costs per washing cycle / program are paid individually (2,80€ washing machine & 2,50€ dryer) and are therefore not included in the overall price.
Additional services / facilities that are NOT INCLUDED in the price:
- parking space (can be booked on request)
What exactly does “fully equipped” mean?
Being able to move into a new place the next day does not happen very often, yet we make it possible! Therefore, we have not only taken care of all the necessary amenities, but these are also included in the price and do not involve any additional charges.
To give you an overview of your new home, we have listed all of the integrated facilities below:
The apartment:
• 2 bathrooms (1 en suite in each bedroom)
• 2 pantry kitchens
• *balcony / terrace
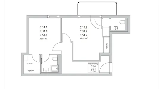
*Please be aware that this studio is located in a 2-unit apartment. You'll have a private bedroom, bathroom/WC and kitchen but the hallway is shared with the other unit. For more information please check the floorpan.
C.14.1 = 19,65m2
C.14.2 = 25,71m2
The bedroom:
• wardrobe
• desk
• chair
• mirror
• lamp
• bed (140 cm)
• mattress
• blanket
• pillow
• curtains
• floor lamp
• shelf
• drawer
• heating unit
• pantry kitchen
• private balcony
*Please note that not all of the rooms have a balcony or terrace. Furthermore, those that do are sometimes shared and therefore more than one room may have access to the same balcony. The exact details of each individual room within the apartment can be seen on the according floorplan, which is included in the pictures.
REQUIRED documents:
- Proof of income (last 3 months) or work contract
- Proof of enrolment (students)
- Guarantor (only if you do not have proof of income)
- Copy of guarantor's ID (only if you do not have proof of income)
- Copy of guarantor's work contract (only if you do not have proof of income)
*the landlord only accepts tenants under the age of 40*
Check-in /out:
- Check-in hours: Monday - Friday from 10:00 - 16:00
- The key transfer will take place at Village M (you will receive the address once your booking is confirmed)
Please be aware once the booking is done on HousingAnywhere we will provide you with the contract. In order for you to get your keys, the deposit and our one-time service fee of 199€ must be transferred to our bank account.
Information and data
This apartment for rent, which is furnished, is located in Berlin Mitte. Berlin Mitte has the zip code and is located in Berlin. The size of the rental is in total 26 m2. The apartment is being rented out as an ordinary rental. The apartment is available to rent from 1.3.2026. The rent is 1,150 EUR per month. You must pay a deposit of 1,350 Euro.
Similar search results
-
22 m2 apartment for rent in Berlin Mitte, Berlin
- 1,000 EUR
- 1. March 2026
-
35 m2 apartment for rent in Berlin Mitte, Berlin
- 1,320 EUR
- 4. April 2026
-
39 m2 apartment for rent in Berlin Mitte, Berlin
- 1,280 EUR
- 4. March 2026
-
12 m2 room for rent in Berlin Mitte, Berlin
- 820 EUR
- 1. March 2026
-
10 m2 room for rent in Berlin Mitte, Berlin
- 700 EUR
- 1. March 2026
-
10 m2 room for rent in Berlin Mitte, Berlin
- 730 EUR
- 4. March 2026
-
11 m2 room for rent in Berlin Mitte, Berlin
- 750 EUR
- 1. March 2026
Frequently asked questions
Statistics on the development of available apartments for rent in Berlin Mitte over the past month
Below you can see the development of available apartments for rent in Berlin Mitte over the past month. In the first column you see the date. In the second column you see the total amount of apartments for rent in Berlin Mitte on the date. In the third column you see the amount of new apartments in Berlin Mitte that was available for rent on the date. In the fourth column you see the amount of apartments in Berlin Mitte that was rented on the date. Also see aggregate statistics on all available apartments in Berlin Mitte over time, aggregate statistics on new apartments in Berlin Mitte over time, aggregate statistics on rented apartments in Berlin Mitte over time
| Date | All apartments for rent | New apartments for rent | Rented apartments |
|---|---|---|---|
| 2. December 2025 | 6771 | 6 | 9 |
| 1. December 2025 | 6774 | 4 | 0 |
| 30. November 2025 | 6770 | 15 | 16 |
| 29. November 2025 | 6771 | 14 | 0 |
| 28. November 2025 | 6757 | 6 | 11 |
| 27. November 2025 | 6762 | 8 | 6 |
| 26. November 2025 | 6760 | 11 | 10 |
| 25. November 2025 | 6759 | 5 | 0 |
| 24. November 2025 | 6754 | 3 | 7 |
| 23. November 2025 | 6758 | 12 | 24 |
| 22. November 2025 | 6770 | 12 | 8 |
| 21. November 2025 | 6766 | 9 | 9 |
| 20. November 2025 | 6766 | 90 | 91 |
| 19. November 2025 | 6767 | 82 | 0 |
| 18. November 2025 | 6685 | 0 | 0 |
| 17. November 2025 | 6685 | 5 | 6 |
| 16. November 2025 | 6686 | 47 | 43 |
| 15. November 2025 | 6682 | 222 | 179 |
| 14. November 2025 | 6639 | 266 | 56 |
| 13. November 2025 | 6429 | 265 | 0 |
| 12. November 2025 | 6164 | 209 | 211 |
| 11. November 2025 | 6166 | 215 | 0 |
| 10. November 2025 | 5951 | 54 | 58 |
| 9. November 2025 | 5955 | 52 | 0 |
| 8. November 2025 | 5903 | 223 | 215 |
| 7. November 2025 | 5895 | 220 | 0 |
| 6. November 2025 | 5675 | 3 | 6 |
| 5. November 2025 | 5678 | 4 | 8 |
| 4. November 2025 | 5682 | 162 | 3 |
| 3. November 2025 | 5523 | 2 | 2 |
| 2. November 2025 | 5523 | 5 | 0 |
Statistics on currently available apartments for rent in Berlin Mitte
In the table below, you see a series of data about available apartments to rent in Berlin Mitte.Also see gathered statistics of all available apartments in Berlin Mitte over time, the gathered statistics of new apartments in Berlin Mitte over time, the gathered statistics of rented apartments in Berlin Mitte over time
| Apartments | |
|---|---|
| Available rentals | 6,768 |
| New rentals since yesterday | 6 |
| Rented out | 9 |
| Ledige m2 i alt | 1,464,693 |