Room for rent, Berlin Mitte, Berlin, Nazarethkirchstraße
Nazarethkirchstraße, Berlin Mitte- Room for rent
- 720 EUR per month
- Room for rent
- 720 EUR per month
⚡See all details about the rental and get direct access to the landlord's contact information.
Room for rent, Berlin Mitte, Berlin, Nazarethkirchstraße
Facts
Report error- 8534668
- Room
- Not specified
- 1.2.2026
- 720 EUR
- 920 EUR
- Yes
⚡See all details about the rental and get direct access to the landlord's contact information.
Room for rent in Berlin Mitte, Berlin
Welcome to our beautiful newly renovated apartments, where you bring the spirit and we take care of the rest!
Our large number of co-living apartments all consist of spacious and bright rooms in a modern design. The best part is, everything is already fully furnished. In other words, you can literally grab your suitcase and move in tomorrow!
Additionally, not only all of the rooms are already equipped with the essentials like electricity, water and internet, but we also offer numerous other facilities that are included in the price. Whether you would like to do sports in our fitness rooms, study in the coworking areas or socialise during organised workshops and events; We have it all!
We are located in ‘Wedding’, which has become one of the trendiest areas in Berlin, throughout recent years.
Today, Leopoldplatz is surrounded by residential areas, shops, and dining establishments.
Wedding is characterized by its diverse mix of cultures and social backgrounds, and the Leopoldplatz district reflects this diversity, creating a vibrant atmosphere. You'll find numerous stores, cafes, restaurants, and markets offering a variety of culinary specialties and products.
The district is also home to some green oases, such as Rehberge Park and Schiller Park, providing opportunities for relaxation and recreation.
Leopoldplatz is well-served by public transportation. Due to its central location, all other exciting parts of Berlin can easily be reached by public transportation, with U6 and U9 lines arriving at the Leopoldplatz (2-mintue walk) on a regular basis.
Overall, the Leopoldplatz district in Wedding offers a diverse and lively experience with an interesting history, cultural diversity, and plenty of options for shopping, dining, and relaxation
With open-minded and international people this place will not only provide you with an amazing new home, but you will also be part of our international and open-minded community, that you do not want to miss out on.
Services / facilities that are INCLUDED in the price:
- heating, electricity, water
- high speed internet
- fitness room
- community area
- working spaces
- gaming area
- security (camera surveillance)
- outdoor areas that can be used as sports facilities
- bicycle parking spaces
- community manager
- great location
- *laundry room (including washing machine & dryer)
*Please note that although a common laundry room is included in the price, the costs per washing cycle / program are paid individually (2,80€ washing machine & 2,50€ dryer) and are therefore not included in the overall price.
Additional services / facilities that are NOT INCLUDED in the price:
- parking space (can be booked on request)
What exactly does “fully equipped” mean?
Being able to move into a new place the next day does not happen very often, yet we make it possible! Therefore, we have not only taken care of all the necessary amenities, but these are also included in the price and do not involve any additional charges.
To give you an overview of your new home, we have listed all of the integrated facilities below:
The apartment:
• equipped kitchen
• oven
• *balcony / terrace
The bedroom:
• wardrobe
• desk
• chair
• mirror
• lamp
• bed
• mattress
• blanket
• pillow
• curtains
• floor lamp
• shelf
• drawer
• heating unit
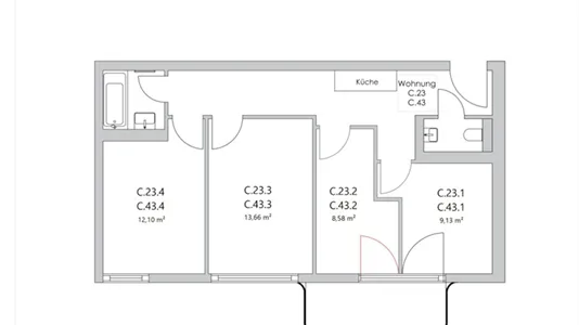
*Please note that not all of the rooms have a balcony or terrace. Furthermore, those that do are sometimes shared and therefore more than one room may have access to the same balcony. The exact details of each individual room within the apartment can be seen on the according floorplan, which is included in the pictures.
REQUIRED documents:
- Proof of income (last 3 months) or work contract
- Proof of enrolment (students)
- Guarantor (only if you do not have proof of income)
- Copy of guarantor's ID (only if you do not have proof of income)
- Copy of guarantor's work contract (only if you do not have proof of income)
*the landlord only accepts tenants under the age of 40*
Check-in /out:
- Check-in hours: Monday - Friday from 10:00 - 16:00
- You will receive the exact address for the key transfer once your booking is confirmed
Please be aware once the booking is done on HousingAnywhere we will provide you with the contract. In order for you to get your keys, the deposit must be transferred to our bank account.
Information and data
This room for rent, which is furnished, is located in Berlin Mitte. Berlin Mitte has the zip code and is located in Berlin. The room is being rented out as an ordinary rental. The room is available to rent from 1.2.2026. The rent is 720 EUR per month. You must pay a deposit of 920 Euro.
Similar search results
-
12 m2 room for rent in Berlin Mitte, Berlin
- 720 EUR
- 1. February 2026
-
15 m2 room for rent in Berlin Mitte, Berlin
- 800 EUR
- 1. February 2026
-
12 m2 room for rent in Berlin Mitte, Berlin
- 730 EUR
- 1. February 2026
-
13 m2 room for rent in Berlin Mitte, Berlin
- 750 EUR
- 1. February 2026
-
10 m2 room for rent in Berlin Mitte, Berlin
- 660 EUR
- 16. February 2026
-
51 m2 apartment for rent in Berlin Mitte, Berlin
- 1,400 EUR
- 1. January 2026
- 1
-
42 m2 apartment for rent in Berlin Mitte, Berlin
- 1,250 EUR
- 4. April 2026
-
34 m2 apartment for rent in Berlin Mitte, Berlin
- 1,280 EUR
- 28. January 2026
Frequently asked questions
Statistics on the development of available rooms for rent in Berlin Mitte over the past month
Below you can see the development of available rooms for rent in Berlin Mitte over the past month. In the first column you see the date. In the second column you see the total amount of rooms for rent in Berlin Mitte on the date. In the third column you see the amount of new rooms in Berlin Mitte that was available for rent on the date. In the fourth column you see the amount of rooms in Berlin Mitte that was rented on the date. Also see aggregate statistics on all available rooms in Berlin Mitte over time, aggregate statistics on new rooms in Berlin Mitte over time, aggregate statistics on rented rooms in Berlin Mitte over time
| Date | All rooms for rent | New rooms for rent | Rented rooms |
|---|---|---|---|
| 30. December 2025 | 414 | 0 | 2 |
| 29. December 2025 | 416 | 2 | 2 |
| 28. December 2025 | 416 | 1 | 0 |
| 27. December 2025 | 415 | 3 | 3 |
| 26. December 2025 | 415 | 12 | 12 |
| 25. December 2025 | 415 | 0 | 3 |
| 24. December 2025 | 418 | 7 | 7 |
| 23. December 2025 | 418 | 2 | 3 |
| 22. December 2025 | 419 | 1 | 0 |
| 21. December 2025 | 418 | 14 | 14 |
| 20. December 2025 | 418 | 6 | 0 |
| 19. December 2025 | 412 | 14 | 89 |
| 18. December 2025 | 487 | 9 | 0 |
| 17. December 2025 | 478 | 77 | 79 |
| 16. December 2025 | 480 | 72 | 0 |
| 15. December 2025 | 408 | 2 | 1 |
| 14. December 2025 | 407 | 53 | 51 |
| 13. December 2025 | 405 | 49 | 0 |
| 12. December 2025 | 356 | 9 | 5 |
| 11. December 2025 | 352 | 0 | 12 |
| 10. December 2025 | 364 | 6 | 6 |
| 9. December 2025 | 364 | 0 | 1 |
| 8. December 2025 | 365 | 1 | 1 |
| 7. December 2025 | 365 | 10 | 11 |
| 6. December 2025 | 366 | 6 | 30 |
| 5. December 2025 | 390 | 3 | 4 |
| 4. December 2025 | 391 | 39 | 42 |
| 3. December 2025 | 394 | 15 | 0 |
| 2. December 2025 | 379 | 10 | 10 |
| 1. December 2025 | 379 | 10 | 0 |
| 30. November 2025 | 369 | 11 | 0 |
Statistics on currently available rooms for rent in Berlin Mitte
In the table below, you see a series of data about available rooms to rent in Berlin Mitte.Also see gathered statistics of all available rooms in Berlin Mitte over time, the gathered statistics of new rooms in Berlin Mitte over time, the gathered statistics of rented rooms in Berlin Mitte over time
| Rooms | |
|---|---|
| Available rentals | 430 |
| New rentals since yesterday | 0 |
| Rented out | 2 |
| Ledige m2 i alt | 4,971 |